Venezia – Cannaregio
Elegante appartamento in palazzo restaurato – Cannaregio, Rio Terà della…
790.000,00€
Venezia - Marcon
HomeSalesTerraferma, Immobili in Vendita
750.000,00€
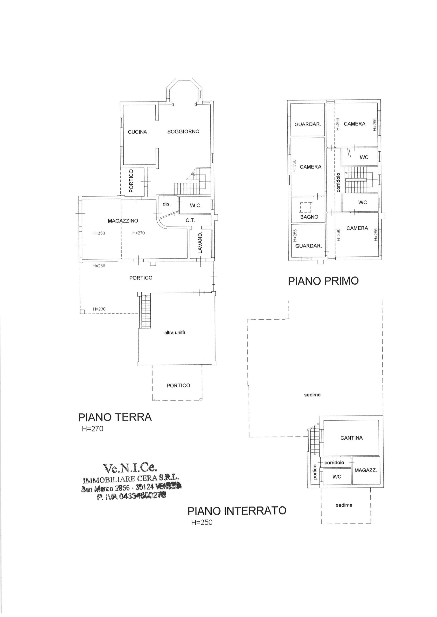
Marcon, in un contesto riservato ed elegante ma perfettamente collegato ai principali servizi e al centro, comodo per l’aeroporto e ai mezzi pubblici per Venezia, proponiamo in vendita una prestigiosa villa singola di circa 300mq, dal fascino senza tempo, oggetto di una recente e completa ristrutturazione eseguita con materiali di alto livello e finiture ricercate.
La proprietà si distingue per l’armonia degli spazi, la luminosità degli ambienti e una distribuzione interna studiata per garantire il massimo comfort abitativo. Al piano terra si apre una raffinata zona giorno composta da un ampio salone, ideale per momenti di rappresentanza e convivialità, una cucina abitabile funzionale e accogliente, una suggestiva taverna, oltre a bagno e locale lavanderia.
Il piano superiore ospita la zona notte, composta da tre spaziose camere matrimoniali, ciascuna dotata di bagno en suite e accompagnata da un’ampia stanza adibita a cabina armadio, pensata per offrire il massimo della privacy, dell’organizzazione e del benessere abitativo.
Il piano interrato, completamente rifinito, rappresenta un ulteriore valore aggiunto: qui trovano spazio una grande cantina, una zona relax dedicata al tempo libero e un ambiente di servizio a supporto dell’area piscina.
All’esterno, la villa è circondata da un curato giardino privato di 1.600 mq recintato e piantumato con una bella siepe che regala un’atmosfera di assoluta tranquillità. Il portico, ampio e perfettamente vivibile, si affaccia sulla splendida piscina, creando uno spazio ideale per pranzi all’aperto, momenti di relax e intrattenimento in ogni stagione.
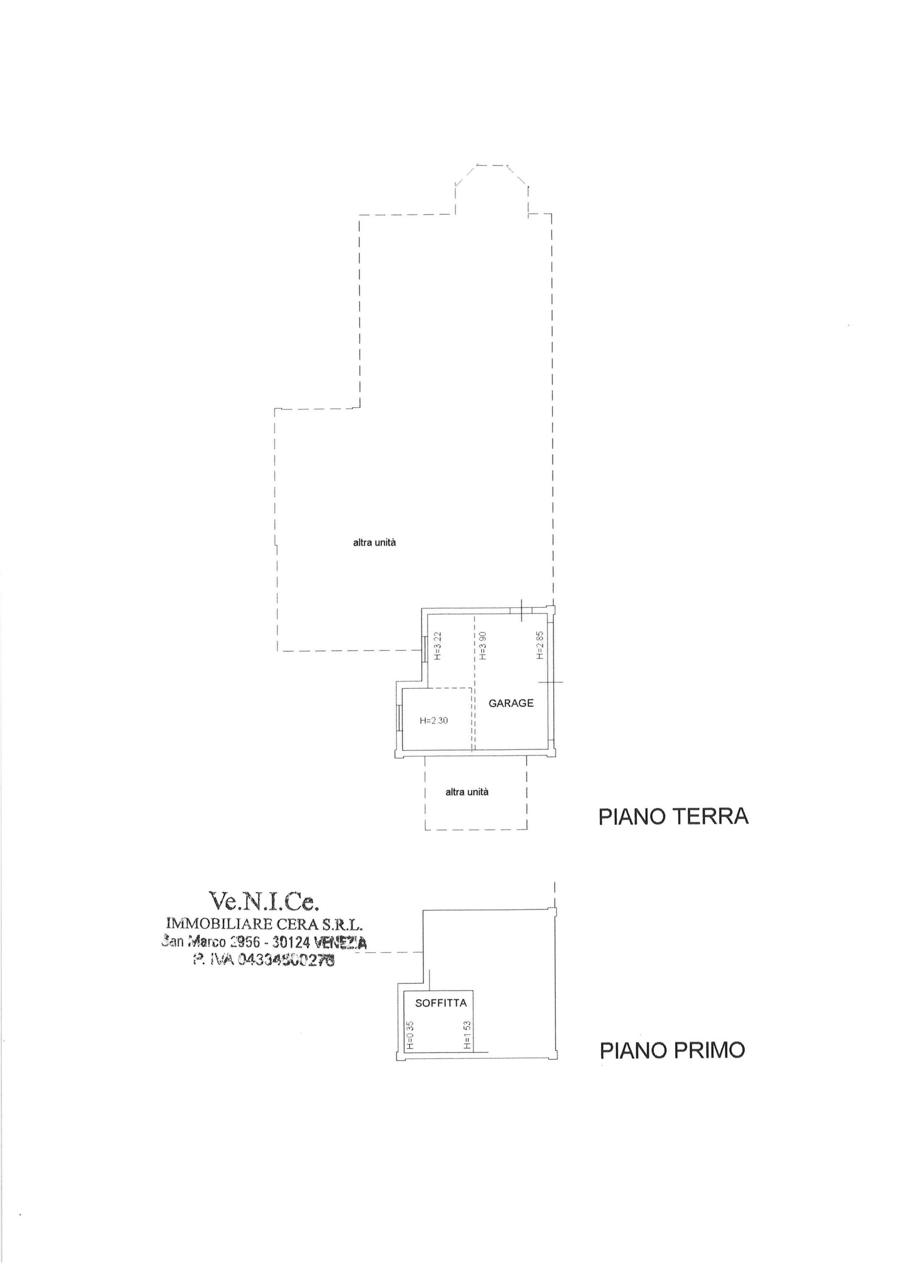
Completano la proprietà un comodo garage e ulteriori posti auto.
Una soluzione esclusiva, perfetta per chi è alla ricerca di una residenza di rappresentanza, dove eleganza, comfort e riservatezza si fondono in un equilibrio perfetto, senza rinunciare alla praticità della vita quotidiana.
OTTIMA OPPORTUNITA’ EURO 750.000
Listed Properties
35
Elegante appartamento in palazzo restaurato – Cannaregio, Rio Terà della…
790.000,00€
Venezia – Rialto | Proprietà Residenziale In posizione esclusiva, a…
700.000,00€
NOSTRA ESCLUSIVA Venezia, Castello – zona Santi Giovanni e Paolo,…
630.000,00€
Owning a home is a keystone of wealth… both financial affluence and emotional security.
Suze Orman